50px
🏗️ Projet : Centre communautaire de Saint-Adolphe-d’Howard
50px
50px
Bloc texte
🏗️ Projet : Centre communautaire de Saint-Adolphe-d’Howard

Â
Â
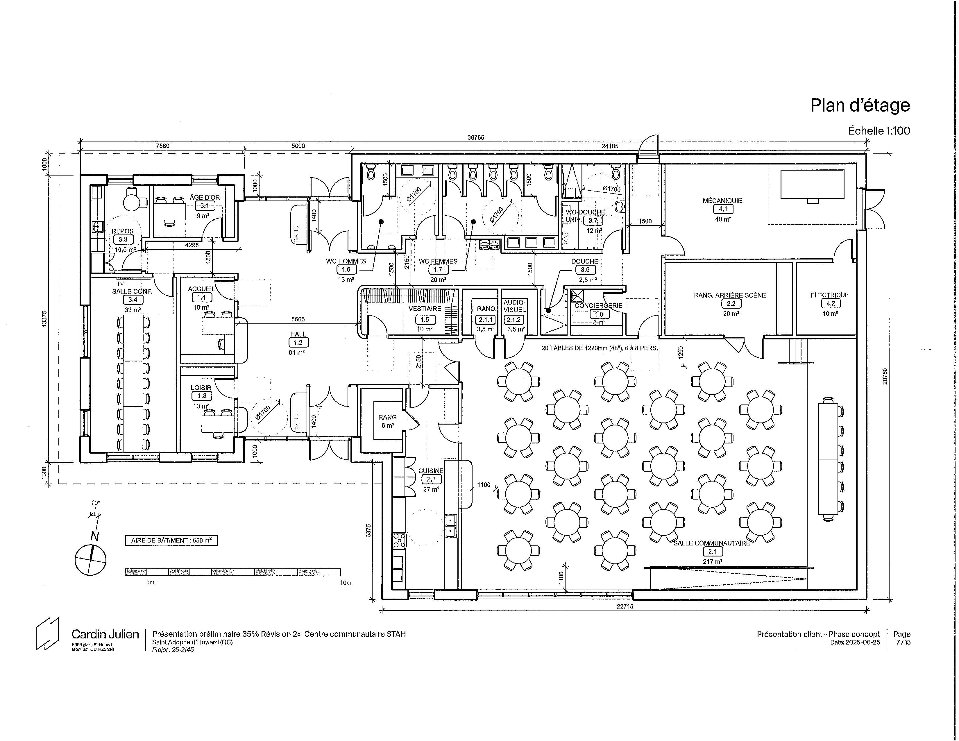
 Projet : Centre communautaire de Saint-Adolphe-d’Howard ! 
La Municipalité est fière de vous présenter la vision préliminaire de ce projet pensé pour rassembler toute notre communauté.
Â
À l’intérieur, vous y trouverez :
Â
Ce centre serait un véritable carrefour d’activités et de rencontres, où chacun pourra participer, créer et partager.
Â
Â
Â
Â
Â
Â
Â
Â
50px
50px